BW Logo groß- Kopie
freisi1a Kopie 1300 45 %

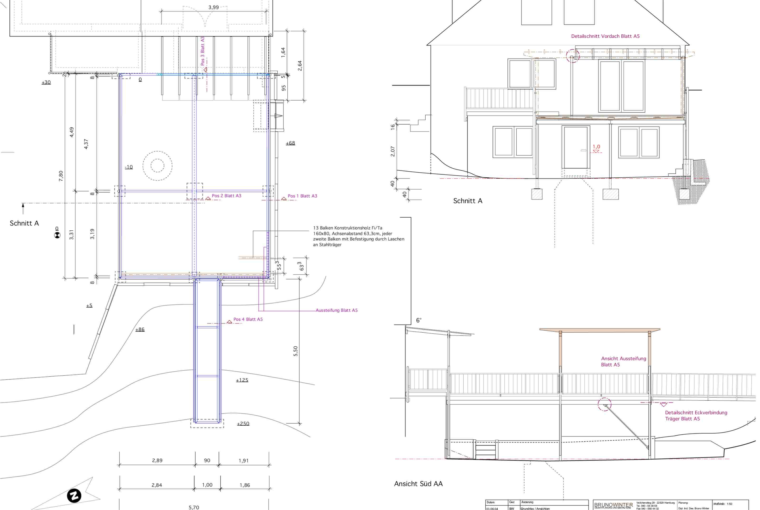
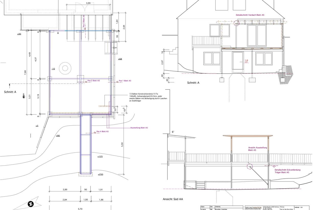
Die Hausrückseite hat eine natürliche Senke, welche als Zufahrt zu Garage und Kellereingang genutzt wurde. Der Wohnraum im EG wurde durch einen Freisitz mit einer Brücke zur Garten-Rasenfläche erweitert und eine Garage zur Einliegerwohnung umgebaut.

Umbau im Bestand



BV Marmstorfer Str.


Freisitz mit Brücke, Außenanlage


  • Leistungsphasen nach HOAI  1 - 5




2006

© BRUNO WINTER

Impressum

Kontakt