
Das Gebäude, ein ehemaliges Gutshaus, Baujahr 1912, wird nach einer wechselhaften Verwendung seit 1998 als Schulgebäude genutzt. Sichtbare Schäden an der Fassade machten eine Sanierung notwendig, ein Sanierungskonzept wurde erstellt. Das Gebäude steht unter Denkmalschutz.

Im Vorweg wurde eine restauratorische Untersuchung der Wandbeschichtung ausgeführt. Mit dem Befund einer rasterelektronischen Analyse wurde in Absprache mit dem Amt für Denkmalschutz die Farbgebung und das Material der Beschichtung festgelegt. Über die Schäden an Dach, Mauerwerk, Fachwerk und Fenster wurde ein Sanierungskonzept mit Kostenberechnung und Wirschaftlichkeitsberechnung erstellt.
Durch aufgerostete Träger entstanden Risse in Putz und Mauerwerk, sie wurden durch verzinkte Träger ersetzt. Alle 92 Fenster konnten durch ein aufwändiges Sanierungskonzept erhalten werden. Dabei wurden die elastischen Eindichtungen außen, wo notwendig die Thermo- Fensterscheiben, und der Anstrichaufbau erneuert.

Austausch der rotten Sparren am Dachüberstand.

Teile des Fachwerks mussten erneuert werden. Die mit einer Dickschichtfarbe behandelten Putzflächen der Gefache wurden abgefräst bzw. mit einem Muschelkalkputz neu verputzt. Die Fassadenfläche und das Holzfachwerk wurden mit einem mineralischen Anstrich, Silikatfarbe, beschichtet.




Während der Ausführung der Fassadensanierung wurde festgestellt, dass bei Starkregen durch eine Kellerwand im ehemaligen Gutshaus Wasser eintrat und die Pausenhalle im Anbau unter Wasser gesetzt wurde. Da keine plausiblen Entwässerungspläne vorhanden waren, wurde der Bestand aufgenommen, ein Sanierungskonzept erstellt und das vorhandene Entwässerungsnetz durch weitere Baumaßnahmen entlastet.
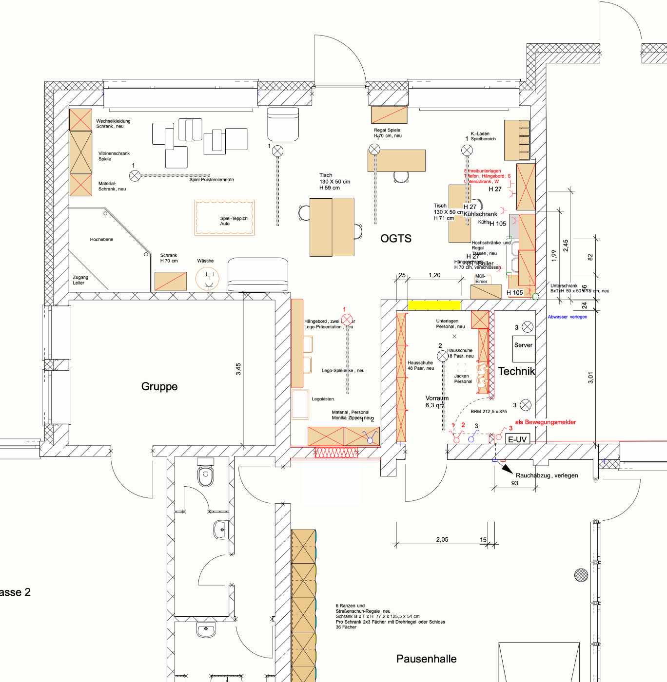
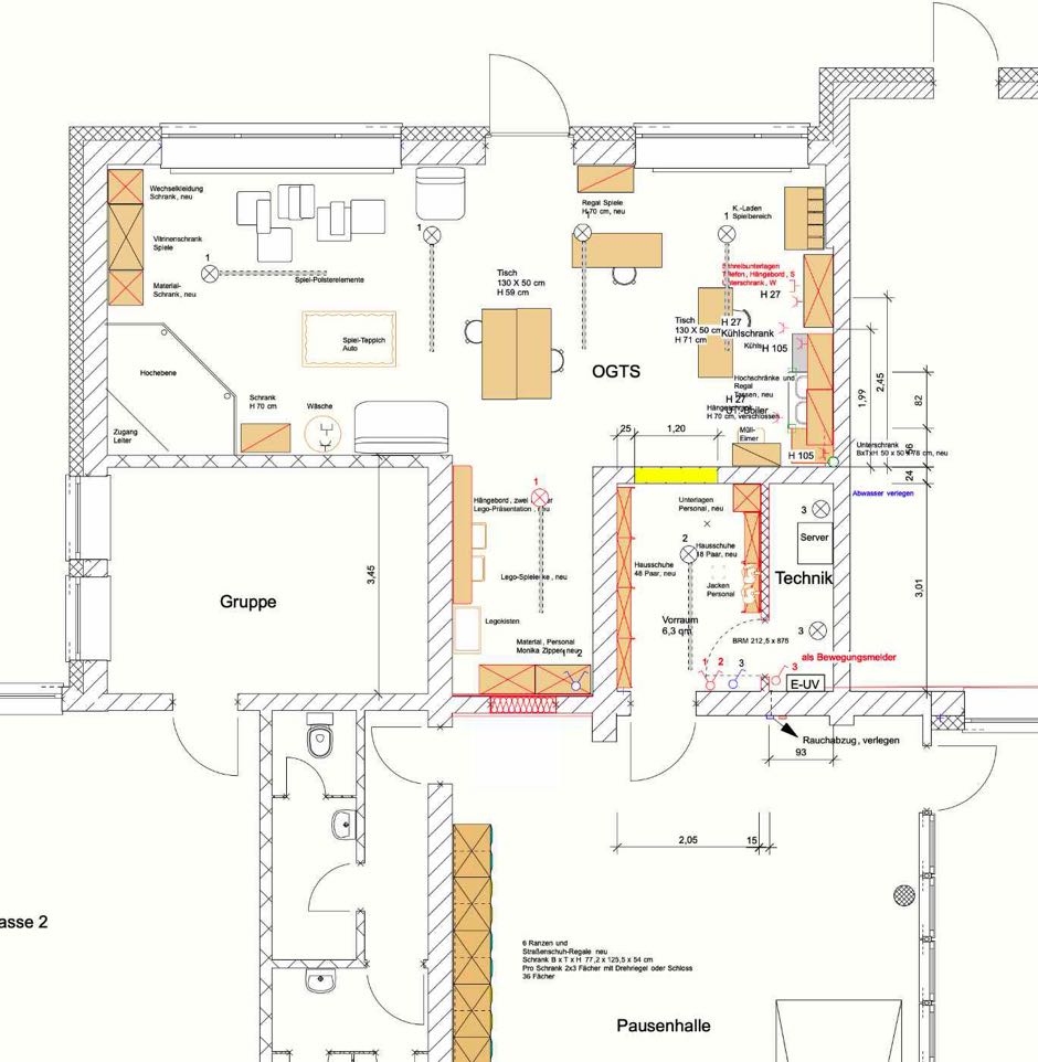
Wie im Bauabschnitt Fassadensanierung, standen auch für die Umbauarbeiten des Bereichs offene Ganztagsschule, OGTS, Fördermittel zur Verfügung. Dafür wurde in Absprache mit der Bauherrin vor Ausführungsbeginn eine Kostenschätzung nach DIN 276 , sowie eine Baubeschreibung für den Förderantrag erstellt.
Der Eingangsbereich der OGTS wurde verlegt, Sondermöbel ergänzen das Mobiliar.


BV Waldenauer Marktplatz
Fassadensanierung
Umbauten
2019 / 2020 / 2021
