BW Logo groß- Kopie
Zeichnung BV Bleickenallee 3500 20%
Lupe 400 100%

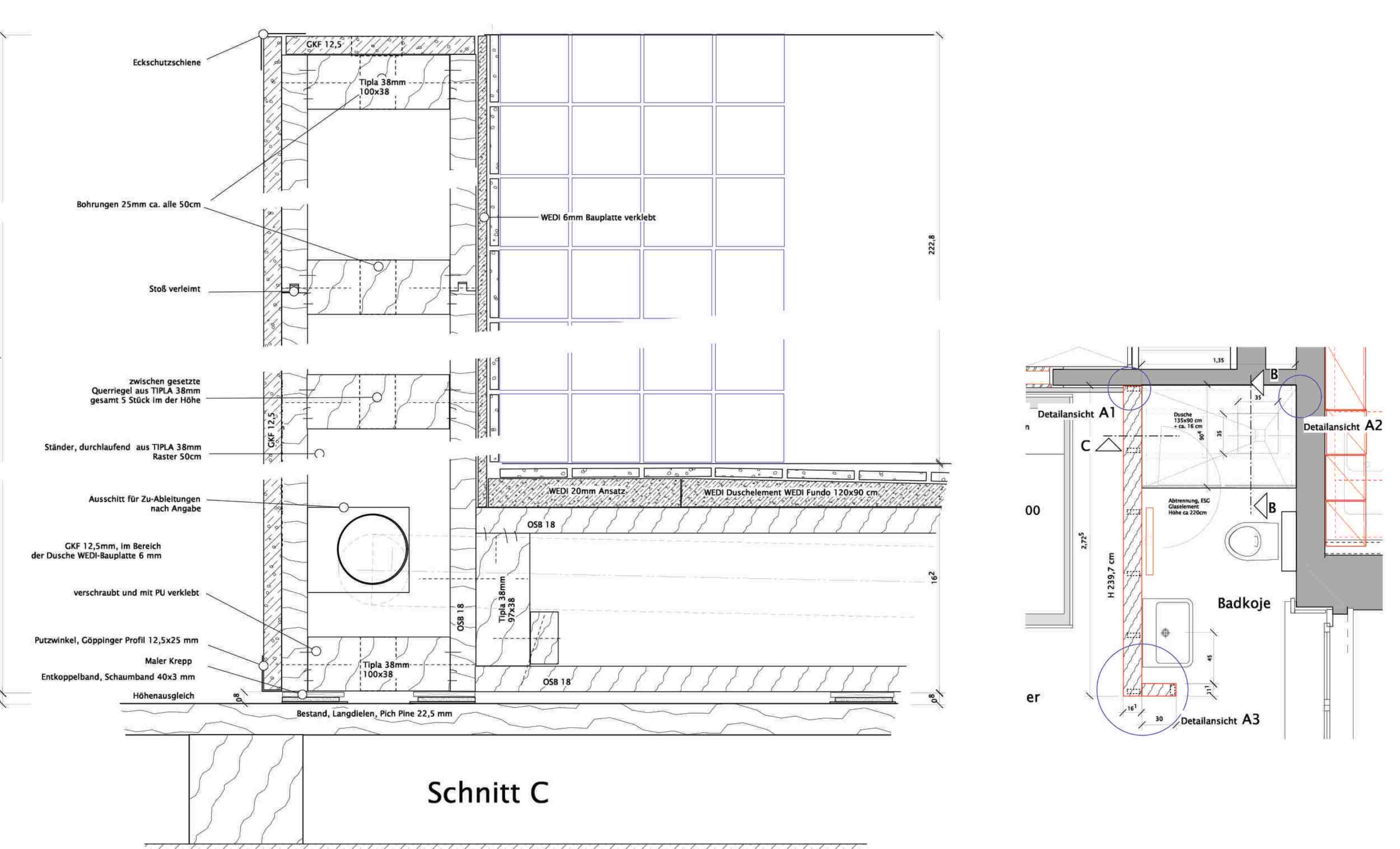
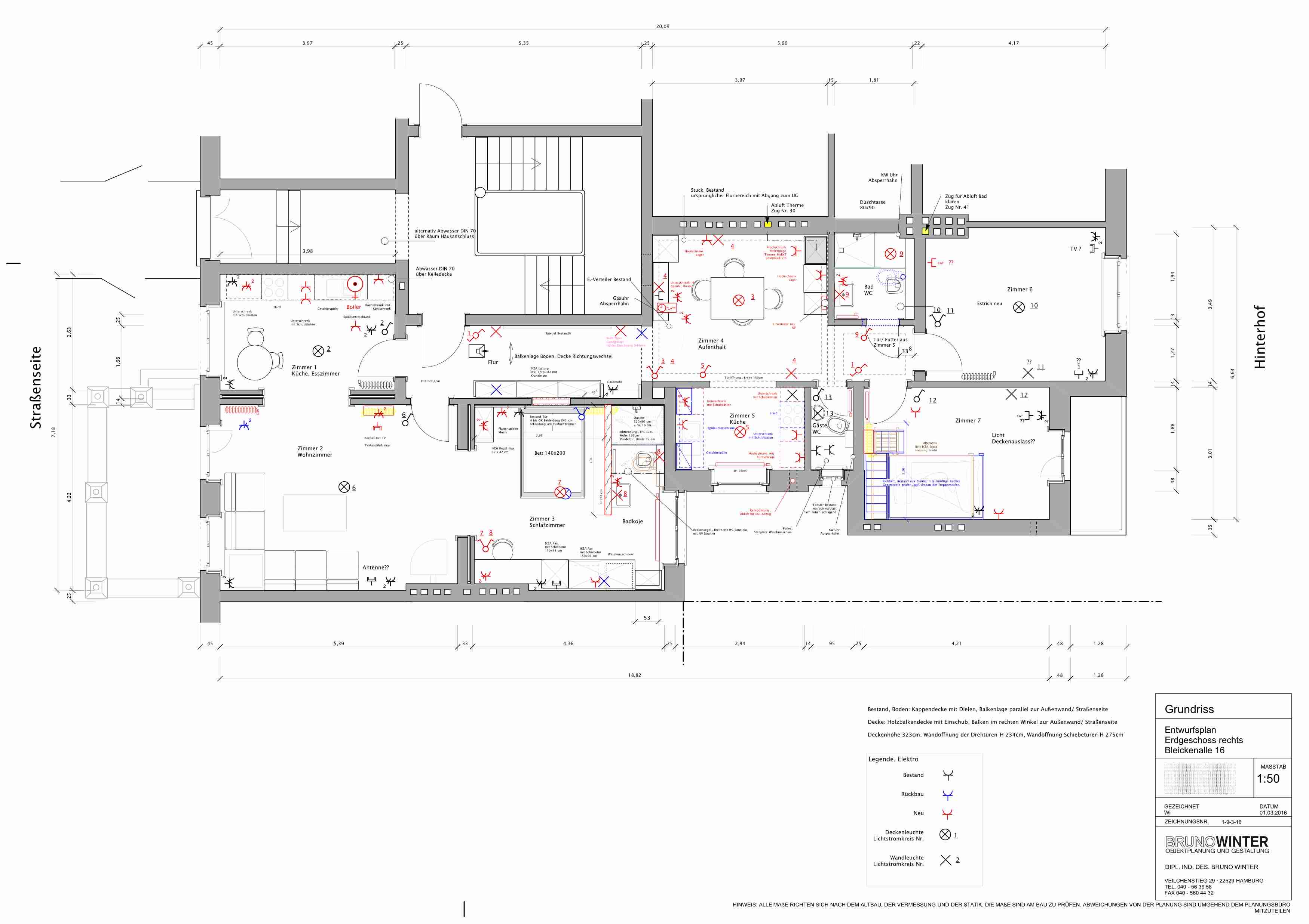
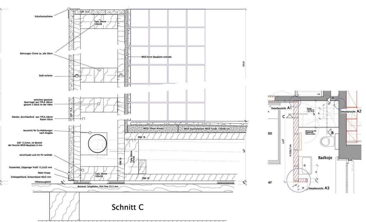
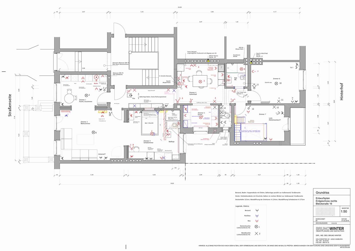
Sanierung einer Wohnung in einem Gründerzeithaus. Ein weiterer Standort für Küche und Bad ermöglicht eine erweiterte Nutzung der Wohnung.

Interior Design

Umbau im Bestand



BV Bleickenalle

Umbau im Bestand


  • Beratung, Detailplanung, Kostenschätzung, Kostenberechnung
  • Ausschreibung und Bauleitung


2016

© BRUNO WINTER

Impressum

Kontakt