Teilsanierung einer Stadtvilla aus 1875.
Durch eine vergrößerte Wandöffnung wurde ein großzügigeres Ensemble erreicht.
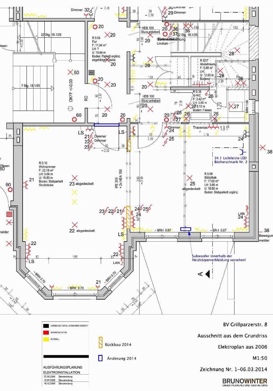
Neue Böden aus massiven Eiche-Schlossdielen wurden eingebaut. Die Haustechnik wurde dem neuesten technischen Stand angepasst.
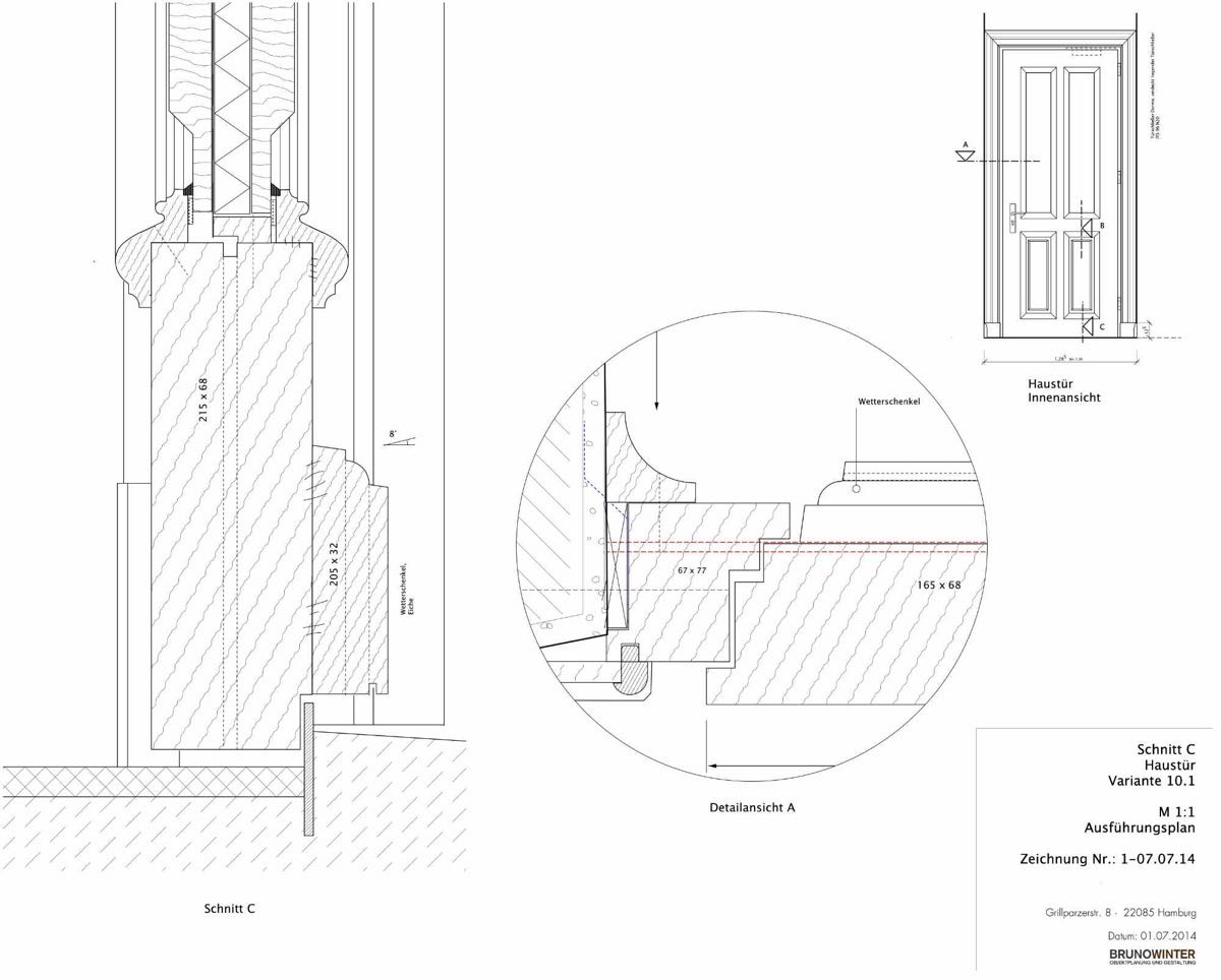
Die Fensterlaibungs- und Heizkörperverkleidungen sowie Türen wurden nach historischem Vorbild neu gefertigt.
BV Grillparzerstraße
Umbauten, Haustechnik
In Kooperation mit dem Architekturbüro H. Hofmann
2014
© BRUNO WINTER
Impressum
Kontakt